












Casa ta cu grădină, la preț de apartament!
Samurcasi 2
133.000€
Camere
4
Suprafata utila
81 mp
Suprafata construita
120 mp
Bai
2
An constructie
2021
- ID:P7693
- Nr. camere:4
- Nr. dormitoare:3
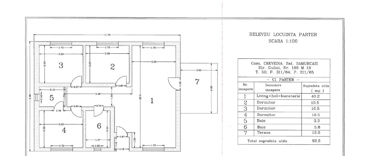
- S. utila:81.00 mp
- S. terase:12.00 mp
- S. construita:120.00 mp
- S. teren:347.00 mp
- Nr. bucatarii:1
- Nr. bai:2
- Nr. parcari:1
- Front stradal:19.00 m
- Nr. fronturi:1
- An constructie:2021
- Structura rezistenta:Caramida
- Regim inaltime:D+P
- Clasa energetica:B
Descriere
Imaginează-ți diminețile liniștite, cu o cafea savurată în propria curte. Această casă modernă din complexul Sole Residence (Crevedia, sat Samurcasi) poate fi noul tău „acasă”, fără aglomerația și compromisurile vieții la bloc.
Construită în 2021 și dispusă pe un singur nivel, locuința te întâmpină cu un living luminos și o bucătărie deschisă, locul perfect pentru momente în familie. Cele trei dormitoare oferă intimitate și confort, completate de două băi funcționale și un pod pentru depozitare.
Cu 81 mp utili , 93 mp totali și o curte privată de 347 mp, ai spațiu suficient atât în interior, cât și afară, pentru relaxare, grădinărit sau joacă.
Te muți fără griji: casa se vinde mobilată și utilată. Beneficiezi de confortul utilităților moderne, precum electricitate și gaz.
Un avantaj important este calitatea apei: pe lângă puțul standard de 12 m folosit pentru irigarea grădinii, proprietatea beneficiază de un al doilea puț forat la 32 m adâncime, alături de un sistem de dedurizare.
Descoperă echilibrul perfect între confort, natură și accesibilitate. Programează o vizionare și fă primul pas spre viața la care ai visat!
Comision ZERO
Citeste mai mult
Construită în 2021 și dispusă pe un singur nivel, locuința te întâmpină cu un living luminos și o bucătărie deschisă, locul perfect pentru momente în familie. Cele trei dormitoare oferă intimitate și confort, completate de două băi funcționale și un pod pentru depozitare.
Cu 81 mp utili , 93 mp totali și o curte privată de 347 mp, ai spațiu suficient atât în interior, cât și afară, pentru relaxare, grădinărit sau joacă.
Te muți fără griji: casa se vinde mobilată și utilată. Beneficiezi de confortul utilităților moderne, precum electricitate și gaz.
Un avantaj important este calitatea apei: pe lângă puțul standard de 12 m folosit pentru irigarea grădinii, proprietatea beneficiază de un al doilea puț forat la 32 m adâncime, alături de un sistem de dedurizare.
Descoperă echilibrul perfect între confort, natură și accesibilitate. Programează o vizionare și fă primul pas spre viața la care ai visat!
Comision ZERO
Specificatii
Curent
Gaz
Put
Fosa septica
CATV
Telefon
Acces internet
Fibra optica
Centrala proprie
Aer conditionat
Izolatie Exterior
Vopsea lavabila
Parchet
Gresie
Ferestre PVC
Ferestre Termopan
Usa intrare Metal
Bucatarie Mobilata
Bucatarie Utilata
Partial mobilat
Curte
Gradina
Razvan Ispas
0754706969
Esti interesat de aceasta proprietate ?