














Teren intravilan Mosoaia Arges
Mosoaia, Exterior Est 144
89.000€
- ID:P7627
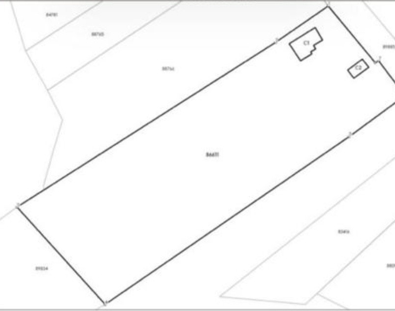
- S. teren:6975.00 mp
- Front stradal:47.70 m
- Nr. fronturi:1
- Clasificare teren:Intravilan
Descriere
De vanzare teren intravilan generos oportunitate pentru investitori si constructori la doar 10 km de Pitesti.
Terenul este intravilan,suprafață 6975 mp, amplasat excelent in comuna Mosoaia,sat Batrani,chiar la strada principala, intr-o zona cu peisaje deosebit de frumoase, ideala pentru dezvoltari imobiliare, turistice sau rezidentiale.
Ca bonus, proprietatea include o padure nedefrisata aflata in continuarea terenului ,in suprafata de 4300 mp perfecta pentru activitati in aer liber, agrement sau ca spatiu verde privat.
Pe teren se afla o casa veche si o anexa, ce pot fi renovate sau demolate pentru a face loc unui nou proiect de constructie.
Terenul beneficiaza de toate utilitatile la poarta apa, curent,internet, gaze si canalizare fapt ce reduce considerabil costurile initiale pentru dezvoltare.
Zona este in plina dezvoltare, fiind tot mai cautata pentru investitii imobiliare, datorita proximitatii fata de orasul Pitesti la doar 10 km si a cadrului natural atractiv.
In apropiere se afla obiective atractive precum:Aerodromul Mosoaia o zona de agrement si zboruri de initiere, popas Casuta din Povesti destinatie turistica si de relaxare.
Detalii proprietate:
Suprafata teren intravilan: 6975 mp construcții,suprafata padure 4300 mp (bonus inclus in pret),deschidere la drum principal .Utilitati la poarta apa, curent, gaze, canalizare,internet.Constructii existente casa veche și anexa.Avantaje investitionale ideal pentru dezvoltari rezidentiale, turistice sau recreative .Acces facil catre Pitesti .Zona linistita, inconjurata de natura .Padure BONUS de 4300 mp proprie inclusa .
Posibilitate de extindere sau parcelare.
Aceasta proprietate reprezinta o ocazie rara pentru investitori si constructori care cauta un teren amplu, bine amplasat, cu potential ridicat de dezvoltare.
Pentru a va facilita achizitia, oferim optiuni de creditare prin colaborari cu institutii financiare de renume.Va putem ajuta sa obtineti un credit avantajos.
Toate acestea cu ZERO COMISION la cumparare!
Citeste mai mult
Terenul este intravilan,suprafață 6975 mp, amplasat excelent in comuna Mosoaia,sat Batrani,chiar la strada principala, intr-o zona cu peisaje deosebit de frumoase, ideala pentru dezvoltari imobiliare, turistice sau rezidentiale.
Ca bonus, proprietatea include o padure nedefrisata aflata in continuarea terenului ,in suprafata de 4300 mp perfecta pentru activitati in aer liber, agrement sau ca spatiu verde privat.
Pe teren se afla o casa veche si o anexa, ce pot fi renovate sau demolate pentru a face loc unui nou proiect de constructie.
Terenul beneficiaza de toate utilitatile la poarta apa, curent,internet, gaze si canalizare fapt ce reduce considerabil costurile initiale pentru dezvoltare.
Zona este in plina dezvoltare, fiind tot mai cautata pentru investitii imobiliare, datorita proximitatii fata de orasul Pitesti la doar 10 km si a cadrului natural atractiv.
In apropiere se afla obiective atractive precum:Aerodromul Mosoaia o zona de agrement si zboruri de initiere, popas Casuta din Povesti destinatie turistica si de relaxare.
Detalii proprietate:
Suprafata teren intravilan: 6975 mp construcții,suprafata padure 4300 mp (bonus inclus in pret),deschidere la drum principal .Utilitati la poarta apa, curent, gaze, canalizare,internet.Constructii existente casa veche și anexa.Avantaje investitionale ideal pentru dezvoltari rezidentiale, turistice sau recreative .Acces facil catre Pitesti .Zona linistita, inconjurata de natura .Padure BONUS de 4300 mp proprie inclusa .
Posibilitate de extindere sau parcelare.
Aceasta proprietate reprezinta o ocazie rara pentru investitori si constructori care cauta un teren amplu, bine amplasat, cu potential ridicat de dezvoltare.
Pentru a va facilita achizitia, oferim optiuni de creditare prin colaborari cu institutii financiare de renume.Va putem ajuta sa obtineti un credit avantajos.
Toate acestea cu ZERO COMISION la cumparare!
Specificatii
Curent
Apa
Gaz
Florentina Barbu
0743097890
Esti interesat de aceasta proprietate ?